
Entry Interior Design Render

Constructed Entry Interior Design

Point Of Sale Render

Dining Area Render

Constructed Tea Bar

Constructed Dining Area 1

Constructed Dining Area 2

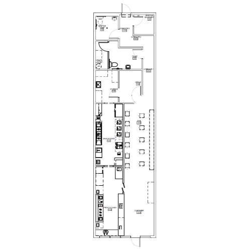
Floor Plan

Constructed Dining Area 3
Contact SSA Architecture
SA Architecture is ready to help you get your project done on time and on budget! Let’s get started today! The first meeting is free. In addition to being architects in Las Vegas, we do work in the surrounding areas too!
Get A Free Quote
Check Our Portfolio

Constructed Dining Area 4

Constructed Dining Area Interior Design

Constructed Dining Area 5

Constructed Dining Area 6

Constructed Front Kitchen Area
SSA Architecture was the architect and provided mechanical, electrical, and plumbing drawings and interior design drawings for this project. We also provided architectural services to bid the project and help the client select the contractor to construct the work. The interior design was according to the franchise seller’s standard requirements and was heavily critiqued by the franchise seller. This was done to make a uniform corporate identity for the stores across all locations internationally. The client here was great to work with and we visited the place after construction. Our staff and friends loved the tea and other drink offerings.